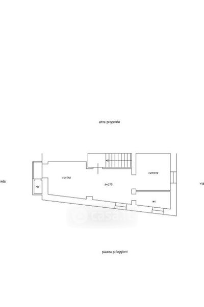
Appartamento in vendita Via da Pozzo Giuseppe , La Spezia
Salva
Casa.it
1/17
  • Street View
  • Map