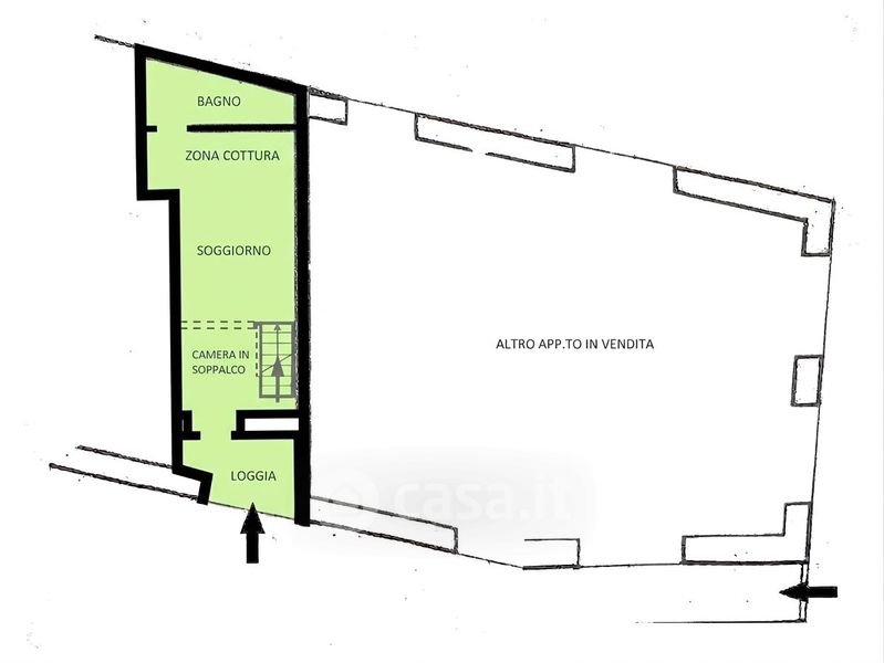
Appartamento in vendita Via dei Boschetti , La Spezia
Salva
Casa.it
1/15
  • Street View
  • Map