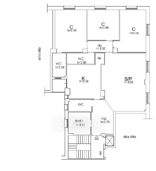
Appartamento in vendita Via Giovanni Costantini , La Spezia
Salva
Casa.it
1/2
  • Street View
  • Map