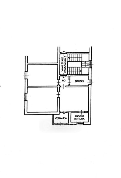
Appartamento in vendita Via Sarzana 757, La Spezia
Salva
Casa.it
1/24
  • Street View
  • Map