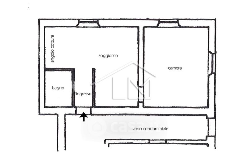
Appartamento in vendita Via Gozzano 3, Lerici
Salva
Casa.it
1/20
  • Street View
  • Map