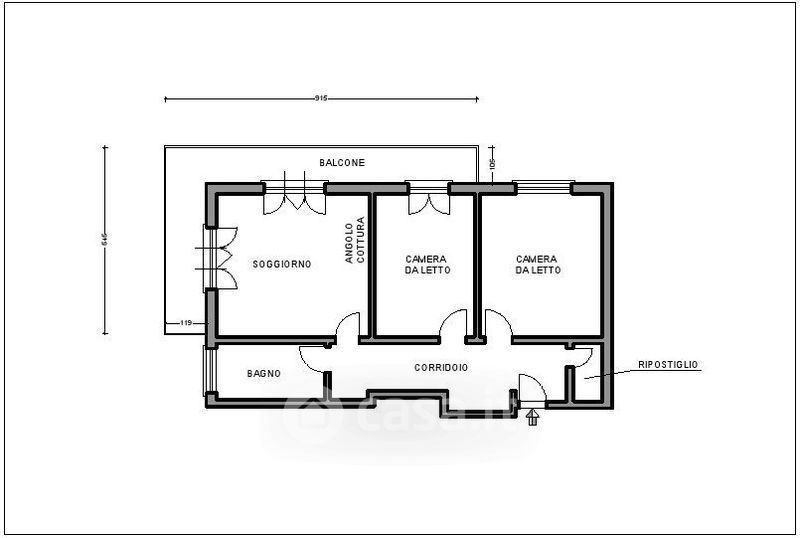
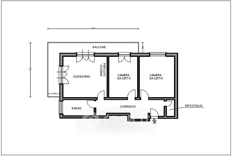
Appartamento in vendita Via Gozzano 16, Lerici
Salva
Casa.it
1/21
  • Street View
  • Map