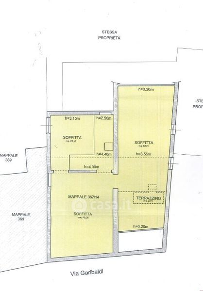
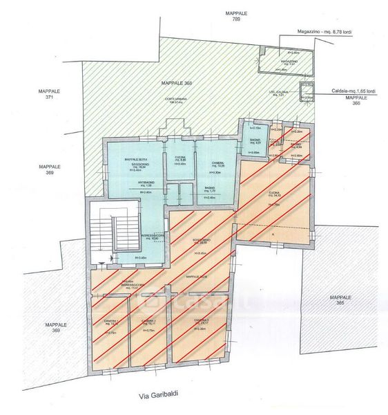
Appartamento in vendita Via garibaldi , Levanto
Salva
Casa.it
1/26
  • Street View
  • Map