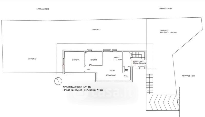
Appartamento in vendita Via Bulasce 23, Loano
Salva
Casa.it
1/12
  • Street View
  • Map