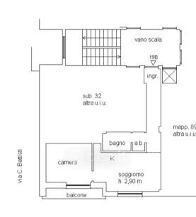
Appartamento in vendita Via Cesare Battisti 86, Pietra Ligure
Salva
Casa.it
1/34
  • Street View
  • Map