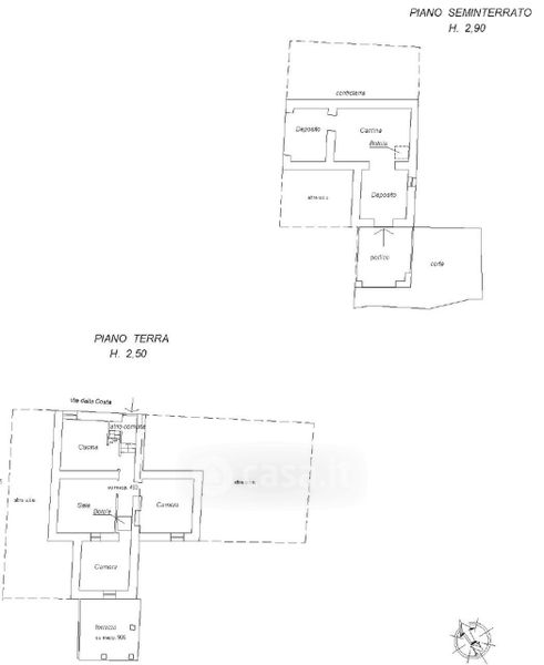
Appartamento in vendita Via Costa 11, Pornassio
Salva
Casa.it
1/35
  • Street View
  • Map