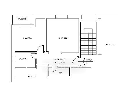
Appartamento in vendita Via Morosso 8, Quiliano
Salva
Casa.it
1/20
  • Street View
  • Map