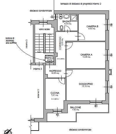
Appartamento in vendita Via Privata Bosena 24, Rapallo
Salva
Casa.it
1/14
  • Street View
  • Map