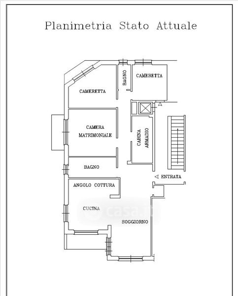
Appartamento in vendita Via Privata Bozzo Costa , Rapallo
Salva
Casa.it
1/36
  • Street View
  • Map