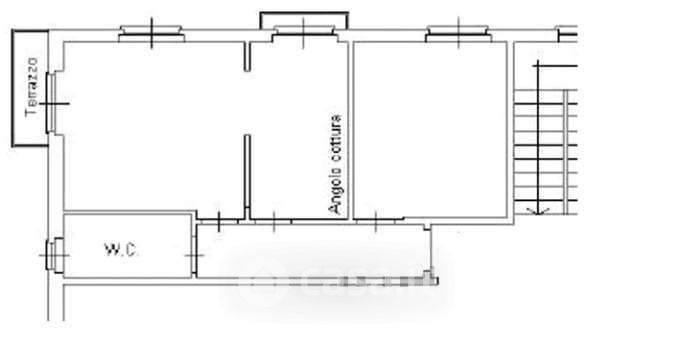
Appartamento in vendita Via Savona 4, Rapallo
Salva
Casa.it
1/22
  • Street View
  • Map