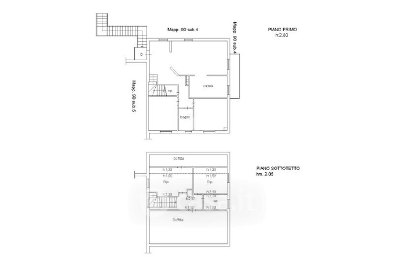
Appartamento in vendita Via Graveglia 113, Riccò del Golfo di Spezia
Salva
Casa.it
1/36
  • Street View
  • Map