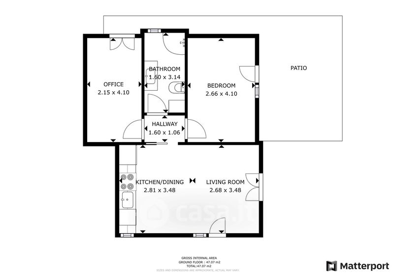
Appartamento in vendita Via Pairola 14, San Bartolomeo al Mare
Salva
Casa.it
1/63
  • Street View
  • Map