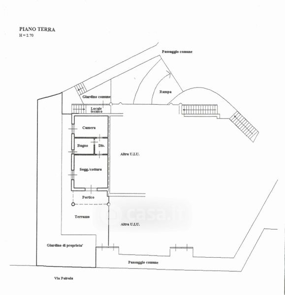
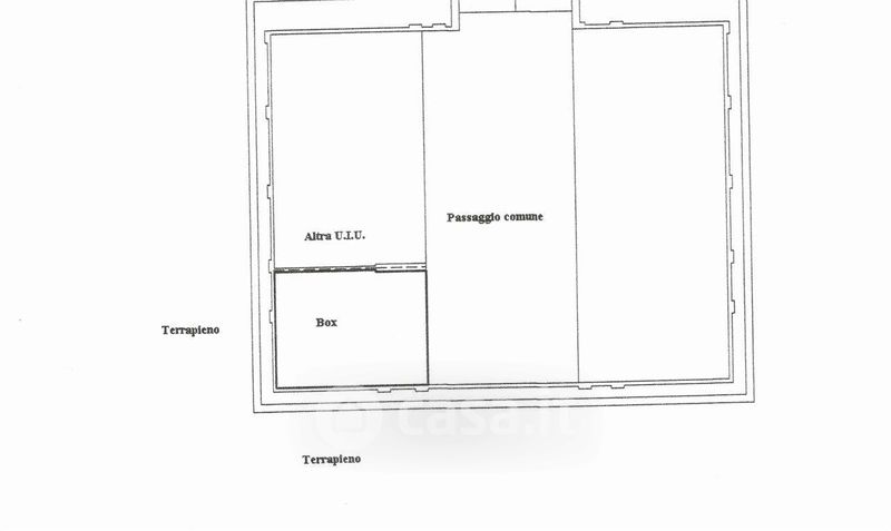
Appartamento in vendita Via Pairola 14, San Bartolomeo al Mare
Salva
Casa.it
1/26
  • Street View
  • Map