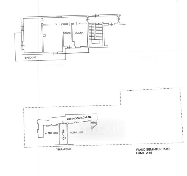
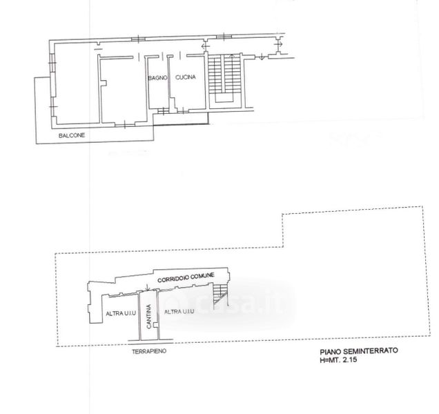
Appartamento in vendita Via San Francesco , Sanremo
Salva
Casa.it
1/15
  • Street View
  • Map