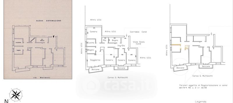
Appartamento in vendita Via Giacomo Matteotti , Sanremo
Salva
Casa.it
1/30
  • Street View
  • Map