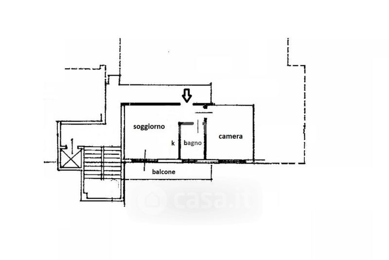
Appartamento in vendita Via Dante Alighieri 24, Sanremo
Salva
Casa.it
1/29
  • Street View
  • Map