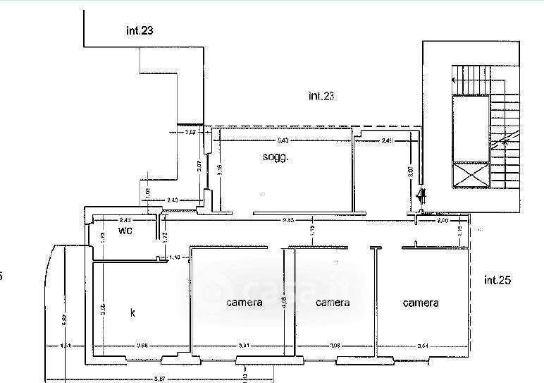
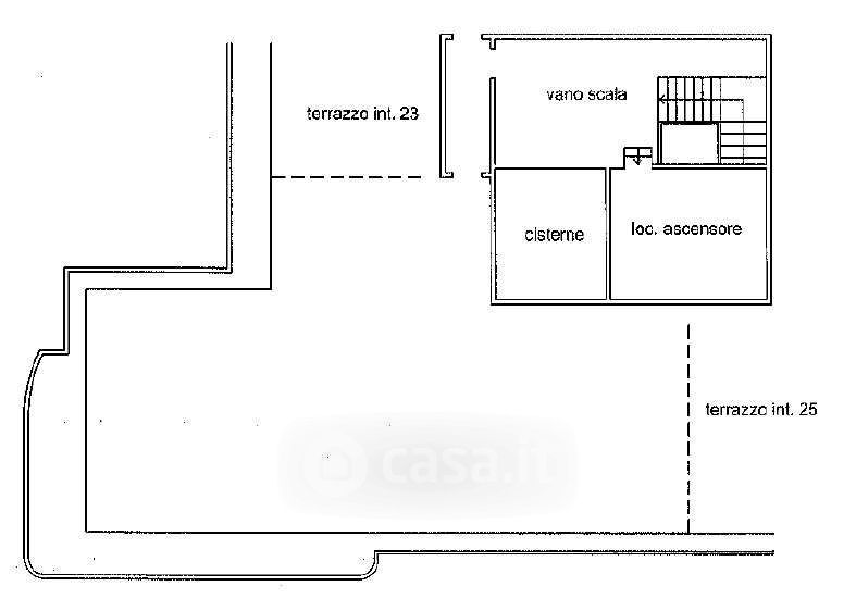
Appartamento in vendita Via Giacomo Poirè 84, Sant'Olcese
Salva
Casa.it
1/9
  • Street View
  • Map