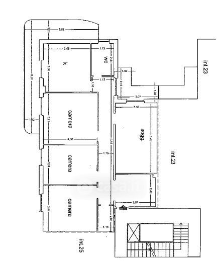
Appartamento in vendita Poirè 83, Sant'Olcese
Salva
Casa.it
1/11
  • Street View
  • Map