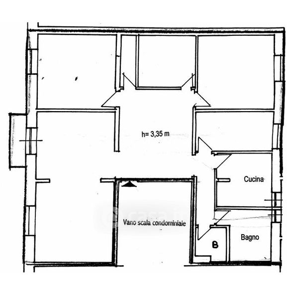
Appartamento in vendita Via Bartolomeo Guidobono 11, Savona
Salva
Casa.it
1/41
  • Street View
  • Map