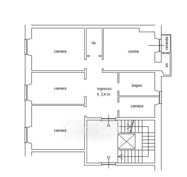
Appartamento in vendita Via Montenotte 5, Savona
Salva
Casa.it
1/20
  • Street View
  • Map