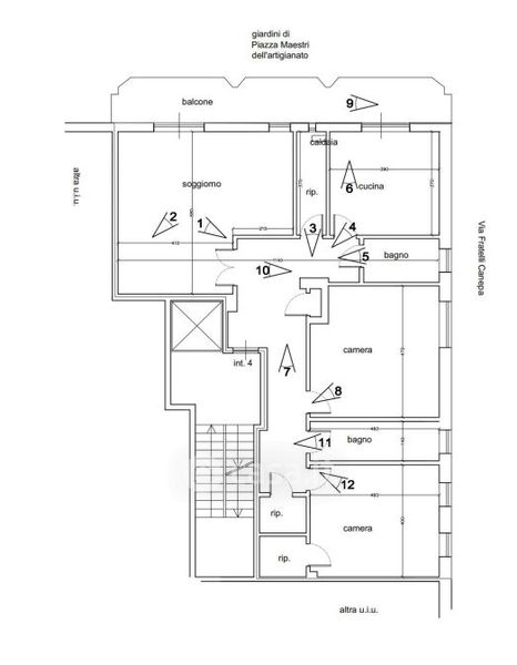
Appartamento in vendita Via Fratelli Canepa 3, Savona
Salva
Casa.it
1/20
  • Street View
  • Map