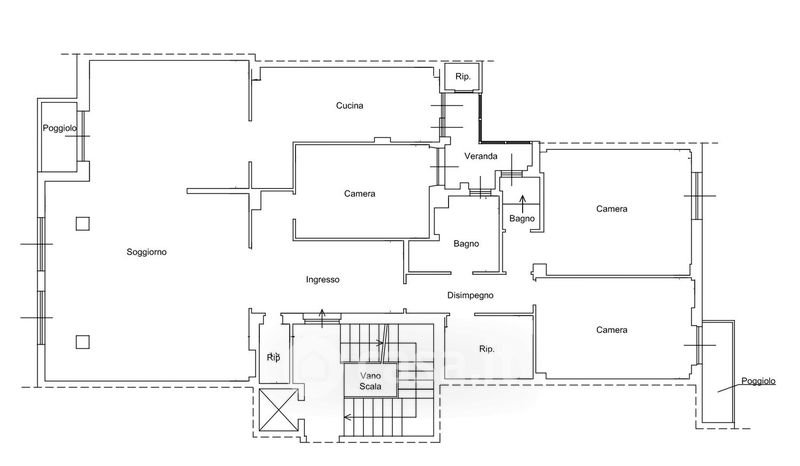
Appartamento in vendita Piazza Guglielmo Marconi , Savona
Salva
Casa.it
1/23
  • Street View
  • Map