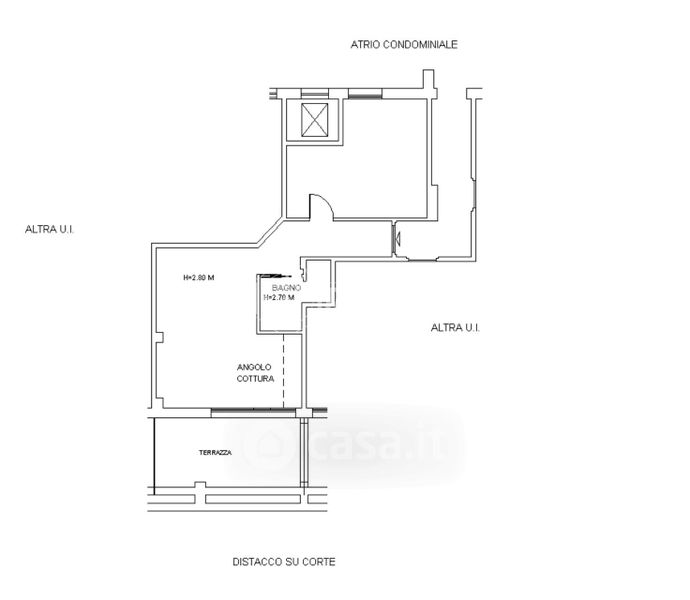
Appartamento in vendita Via Nizza 122, Savona
Salva
Casa.it
1/20
  • Street View
  • Map