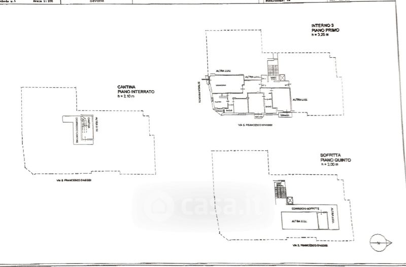
Appartamento in vendita Via San Francesco D'Assisi , Savona
Salva
Casa.it
1/20
  • Street View
  • Map