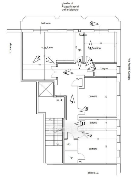
Appartamento in vendita Via Fratelli Canepa , Savona
Salva
Contatta l'inserzionista
Casa.it