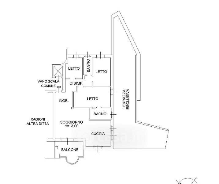
Appartamento in vendita Via dei Gerani , Varazze
Salva
Casa.it
1/46
  • Street View
  • Map