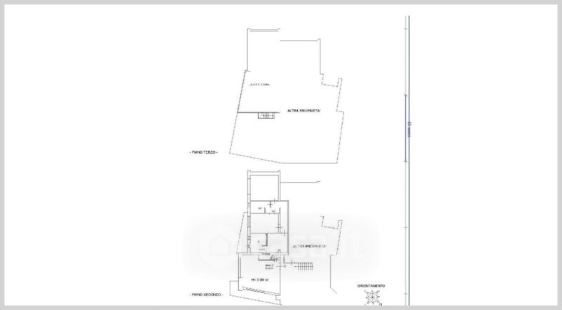
Appartamento in vendita Via Anacleto Hughes , Ventimiglia
Salva
Casa.it
1/32
  • Street View
  • Map