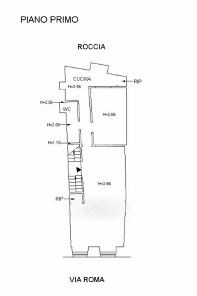
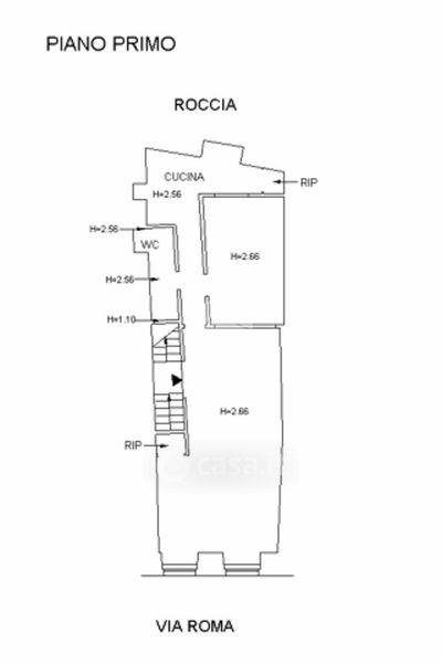
Appartamento in vendita Via Roma 72, Vernazza
Salva
Casa.it
1/27
  • Street View
  • Map