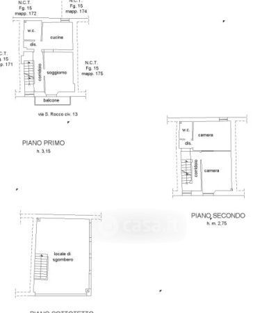
Appartamento in vendita Vico San Antonino 13, Villanova d'Albenga
Salva
Casa.it
1/21
  • Street View
  • Map