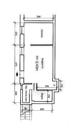
Appartamento in vendita Via L. Bernabò Brea 30, Zoagli
Salva
Casa.it
1/13
  • Street View
  • Map