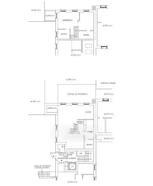
Appartamento in vendita Via Fratelli Bandiera 15, Abbiategrasso
Salva
Casa.it
1/36
  • Street View
  • Map