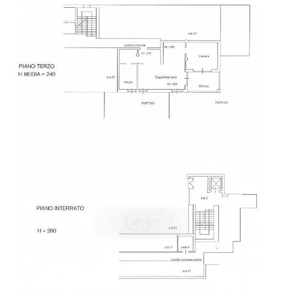
Appartamento in vendita Via Galileo Vercesi 19, Abbiategrasso
Salva
Casa.it
1/33
  • Street View
  • Map