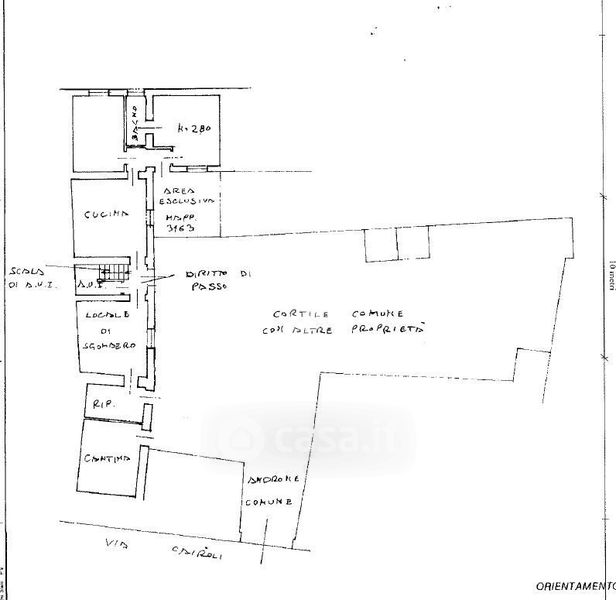
Appartamento in vendita Via Fratelli Cairoli 12, Adro
Salva
Casa.it
1/24
  • Street View
  • Map