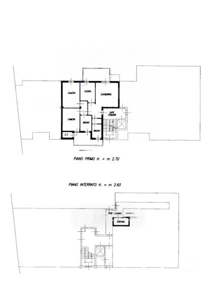
Appartamento in vendita Via Padre Clemente Vismara 55, Agrate Brianza
Salva
Casa.it
1/34
  • Street View
  • Map