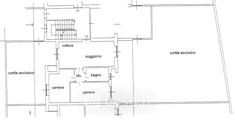
Appartamento in vendita Via Amilcare Ponchielli , Alzano Lombardo
Salva
Casa.it
1/28
  • Street View
  • Map