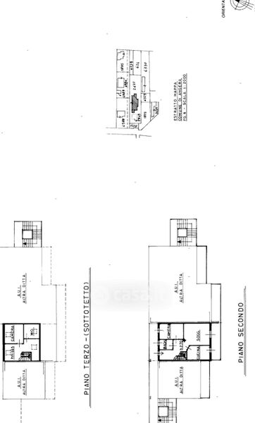
Appartamento in vendita Via Don Bosco 4, Angera
Salva
Casa.it
1/56
  • Street View
  • Map