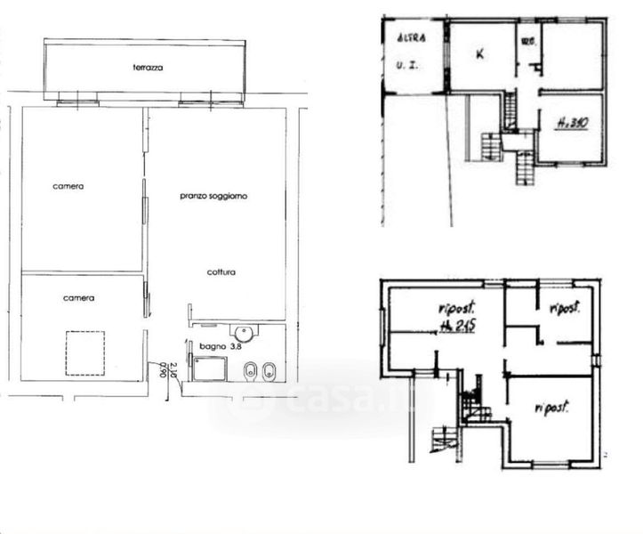
Appartamento in vendita Piazza Giuseppe Garibaldi 17, Annicco
Salva
Casa.it
1/17
  • Street View
  • Map