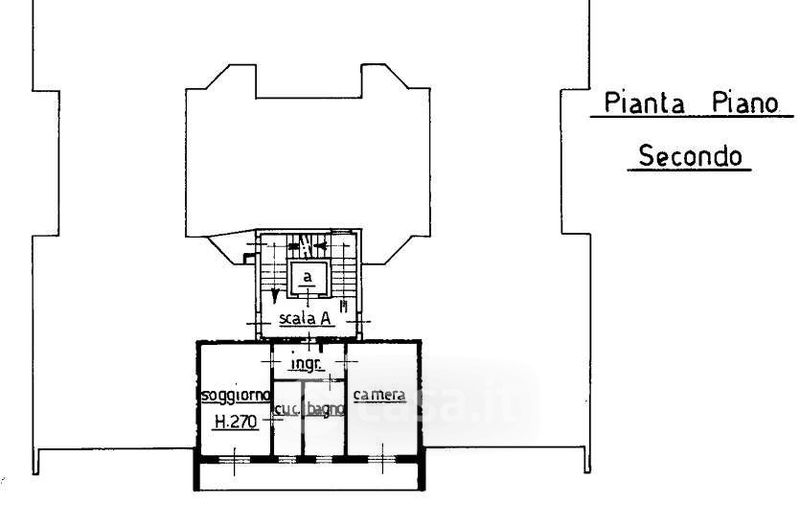
Appartamento in vendita Vicolo dell'Assunta 1, Arconate
Salva
Casa.it
1/23
  • Street View
  • Map