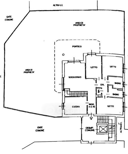
Appartamento in vendita Via Eliseo Vismara 74, Arese
Salva
Casa.it
1/30
  • Street View
  • Map