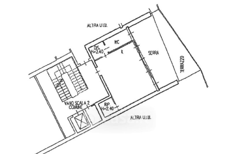
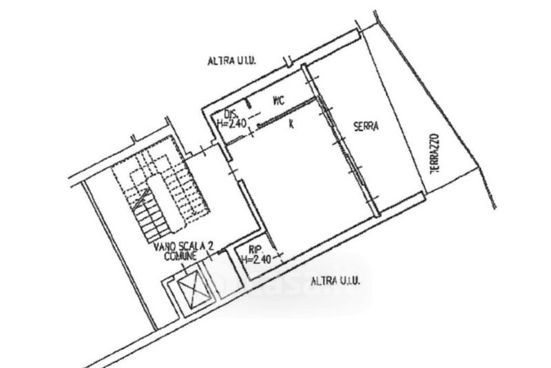
Appartamento in vendita Via Roggia Bartolomea 7, Assago
Salva
Casa.it
1/29
  • Street View
  • Map