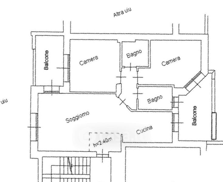
Appartamento in vendita Via Bazzana Inferiore 4, Assago
Salva
Casa.it
1/30
  • Street View
  • Map