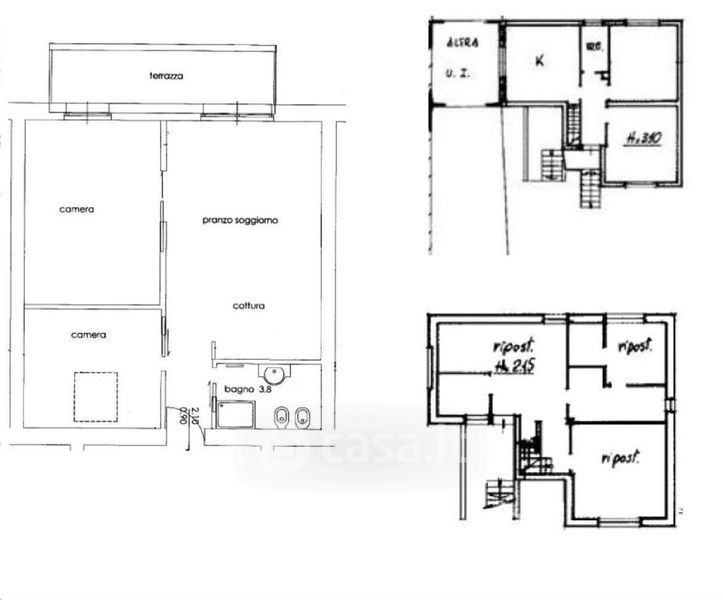
Appartamento in vendita Via Madonna delle Viti 11, Bagnolo Cremasco
Salva
Casa.it
1/17
  • Street View
  • Map