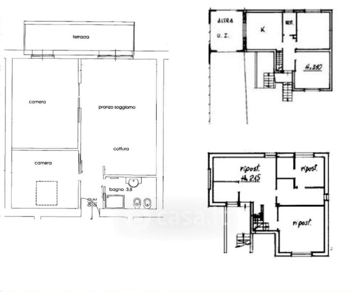
Appartamento in vendita Via Giuseppe Mazzini 35, Bagnolo Cremasco
Salva
Casa.it
1/13
  • Street View
  • Map