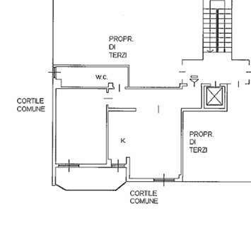
Appartamento in vendita Via Sempione 20, Baranzate
Salva
Casa.it
1/17
  • Street View
  • Map