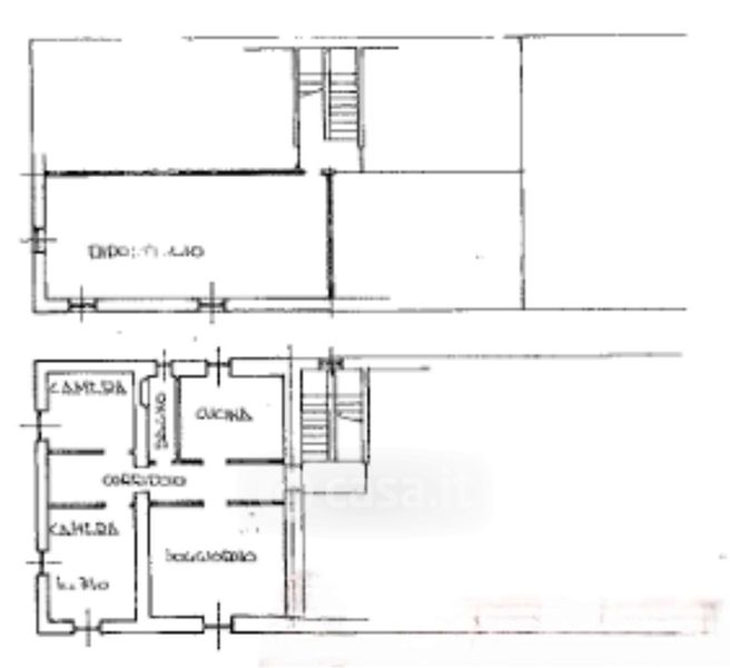
Appartamento in vendita Via Oltrona 10, Barasso
Salva
Casa.it
1/50
  • Street View
  • Map