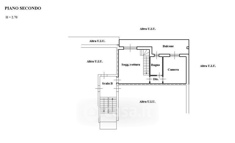
Appartamento in vendita Via Isonzo 30, Bareggio
Salva
Casa.it
1/12
  • Street View
  • Map